広島・岡山・山口でのリフォーム全般はイワタニ山陽株式会社にお任せください!
お電話でのお問い合わせ先
一覧はこちらから
WEBからのお問い合わせ
ご相談はこちらから
ホーム
施工事例
新着情報
おすすめリフォーム
工事の流れ
リフォームQ&A
会社案内
スタッフ紹介
お問い合わせ
プライバシーポリシー
ホーム
施工事例
おすすめリフォーム
工事の流れ
リフォームQ&A
会社案内
施工事例
【施工事例一覧へ戻る】
<< 前の施工事例を見る
次の施工事例を見る >>
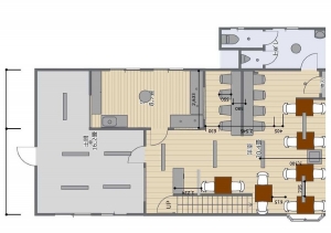
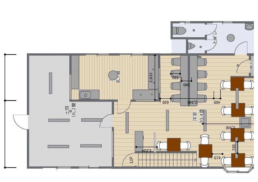
店舗・事務所・設備機器取替
【お食事処 すぎの】 店舗改装 (②厨房編)
全面改装工事させていただきました。
厨房の改装工事
リフォームデータ
【施工場所】
三次市東酒屋町
【リフォーム箇所】
厨房・フロア・トイレ 全般
【リフォーム期間】
60日間
【物件概要】
戸建て
ご利用いただきありがとうございました。
【施工事例一覧へ戻る】
<< 前の施工事例を見る
次の施工事例を見る >>